物件についてのご相談など、お気軽にお問い合わせください。
内容を確認後、担当者よりご連絡差し上げます。
おすすめ物件情報
カンボジアは、活気あふれるエネルギッシュな国。
刺激的な発見に満ちた土地・不動産をご紹介いたします。
- 2021.10.15
- おすすめ物件情報
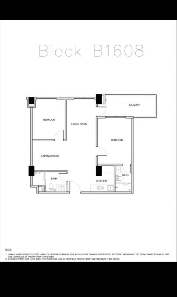
【SOLD OUT】Urban Village Cambodia
既に建設済のコンドミニアムのコロナの影響によるリセールです。
プノンペン特別市に位置します。
フン・セン通りと国道2号線という交通の大動脈に挟まれた高立地です。
今後BKKに行くにも新空港に行くにも便利な場所で高騰が予測されます。
プロジェクト自体は760,000平方メートルもの敷地面積を保有しており香港ディベロッパー様が開発した案件となっております。
今回の物件は高層階、角部屋、レイアウトはフロア内で一番いい条件です。
2ベッドルームで現状115000ドルですが100,000ドルで交渉をいれてみる予定です。
カンボジアのコンドミニアム投資をしてみたいと思っている方にはおすすめです。
お早めにお問い合わせお待ちしております。
- 所在地
- National Road No2 Phnom Penh, 12354
- 想定年利
- 10 %
- 価格(US$)
- 115,000 $
- 価格(日本円)
- 12,765,000 円 (1$:111円にて換算)
- プロジェクト工期
- 敷地面積
- 約 760000 m²
お問い合わせ





